Skip to content
Skip to content

Precise drafting solutions for residential & commercial projects

From on-site measurements to marketing-ready floor plans, we deliver professional drawings you can rely on. Serving homeowners, builders, architects, and realtors across WNC and beyond.

  • ✓ Residential & commercial
  • ✓ Rush options available
  • ✓ SVG/PDF deliverables
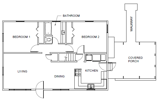
Sample plan preview First floor house plan

What we deliver

Full‑service drafting for homeowners, builders, architects, and realtors. On‑site field measurement, clean marketing plans, and as‑builts you can trust. Rush options available.

Residential Floor Plans (Field‑Measured)

On‑site measurements drafted in AutoCAD. Ideal for remodels, permits, or accurate listings.

  • Up to 1,500 sq ft: $349
  • 1,500–2,500 sq ft: $449–$549
  • 2,500+ sq ft: Custom ($599–$749 typical)

Residential Plans (From Drawings/Sketches)

You provide existing drawings or a sketch; we draft a clean, scaled plan and deliver fast.

  • Any size: $199–$349

As‑Built Drawings

Documentation of existing conditions, conversion or field‑verified as‑builts for records and permits.

  • Conversion or field‑verified: $299–$499

Marketing Floor Plans (MLS‑Ready)

Simplified, polished layouts optimized for MLS and online marketing.

  • From existing drawings: $199–$299
  • Add‑on to field‑measured plan: +$119

Rush Services

Expedited turnaround based on timing and complexity.

  • Next‑day: +25–50%

Popular Add‑ons

Branding, exports, and extras that make agents’ lives easier.

  • SVG/PDF/PNG deliverables included
  • Brokerage‑branded templates
  • Social‑safe watermarked images

Transparent pricing

Clear tiers with 9‑ending prices. Volume discounts available for offices/teams.

Residential

Field‑Measured Plans

  • • Up to 1,500 sq ft — $349
  • • 1,500–2,500 sq ft — $449–$549
  • • 2,500+ sq ft — Custom ($599–$749 typical)
Book Field‑Measure
Fastest

From Drawings/Sketches

Provide drawings or a sketch and get clean, scaled deliverables.

$199–349

  • • SVG, PDF, PNG included
  • • MLS‑ready available
  • • 1–2 business day turnaround
Start from Drawings
Documentation & Marketing

As‑Builts & MLS Plans

  • • As‑Built (conversion/field‑verified) — $299–$499
  • • MLS‑Ready (from drawings) — $199–$299
  • • MLS add‑on to field‑measured — +$119
Rush: +25–50%
Ask about bundles

Recent samples

A quick look at the deliverable style. We can match brokerage brand guides on request.

Project Samples

Built by an engineer‑turned‑drafter

Decades of drafting experience across architectural, MEP, and structural projects — now focused on real estate plans that are accurate, legible, and delivered fast. We speak both tech and field, so your agents get exactly what they need.

  • • 1989 AutoCAD certified; decades in AEC + IT
  • • Realtor‑focused workflows and file formats
  • • Calm, concierge‑level communication

Standard deliverables

File formats
SVG, PDF, PNG
Turnaround
1–2 business days (rush available)
Coverage
WNC on‑site; remote nationwide

Book a scan

Pick a time and share the property address. We’ll confirm scope, price, and turnaround the same day.

Contact

Your message is delivered securely to our inbox.